Proyectos
MALBA Museo de Arte Latinoamericano de Buenos Aires Buenos Aires / Argentina
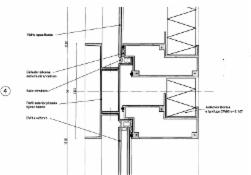
Este cuidado proyecto, resultado de un concurso internacional, planteaba prolijos y complejos detalles de ingeniería de fachada, al mismo tiempo que exigía los mayores estándares de calidad y durabilidad, debido a las valiosas obras de arte que alberga.
Estudio Marshall y Asociados fue contratado por el propietario para asistir a los proyectistas durante las etapas de diseño, (En colaboración con Arup Facade Engineering) y luego licitación, ingeniería, fabricación e instalación en obra de todos los cerramientos vidriados, incluyendo ensayos de hermeticidad en obra de casi todos los cerramientos. Los principales temas fueron las cubiertas vidriadas multicapas del hall central y las salas de exhibición, los muros cortina del sector administrativo y hall central y la caja de cristal de la Plaza Perú.
Cliente: Fundación E. Contantini
Arquitectos: Atelman - Fourcade - Tapia
Fecha: 1999-2001
Auditorio Fundación del Pino Madrid / Spain
A cien años después de que Paul Scheerbart irrumpiera en el mundo con su obra “Arquitectura de Cristal”, hemos llegado no solo a darle la razón sino que hoy en día la arquitectura de cristal es un tema cotidiano. El Auditorio Rafael del Pino, este magnífico proyecto de Rafael de La-Hoz, es una expresión fuerte y delicada a la vez, de esta arquitectura que utiliza la tecnología del vidrio para materializar una poética propuesta del “jardín habitado” al decir de Rafael. Se propone la realización de unas fachadas en cristal transparente e incoloro, casi diríamos “etéreas”, en contraposición con la fuerte geometría y dimensiones de los pilares arbóreos. Lo primero que uno ve al observar el edificio es la fuerte presencia de los “árboles” que no son más que la verdadera estructura portante de todo el Auditorio de la cual “cuelgan” los forjados. Estos pilares fueron construidos en acero. Por detrás de los mismos se ubica el cerramiento propiamente dicho del Auditorio. Construido en vidrio neutro, sin ningún tipo de tinte. Dos de las fachadas tienen sus frentes hacia las calles Fortuny y Rafael Calvo, una tercera hacia el Palacete del arquitecto J.L.Sallaberry y la cuarta hacia un predio vecino. Las dos fachadas que asoman sus frentes a la vía pública son de cristal, planas y perfectamente verticales.La fachada opuesta a la calle Fortuny, orientada hacia la medianera, es de cristal, inclinada y con una suave curvatura positiva (convexa) reconstruyendo de esa manera el galibo requerido por la normativa. La fachada orientada hacia el palacete, ofrece una superficie más pétrea y cerrada. Una investigación, basada en la utilización del método de Análisis de Elementos Finitos, nos permitió ver que en el caso de la piel exterior (vidrios mas grandes que en la interior), las deformaciones que se alcanzaban bajo la carga de viento eran excesivas. Para disminuir estas deformaciones, se hicieron varias propuestas adoptando finalmente unas pequeñas presillas montadas sobre unas cortas ménsulas metálicas verticales en coincidencia con las juntas de vidrios y apoyadas en las pasarelas de mantenimiento.La doble fachada definitivamente es una óptima solución desde el punto de vista ambiental. Mediante una gestión adecuada, permite el aprovechamiento de la energía solar que recibe.
Verano
Aprovechamiento que en verano se traduce en un refrescamiento de la fachada y mejora sustancial de la ventilación natural, a lo cual se agrega que cualquier dispositivo de control solar se puede instalar en la cámara intermedia lo que beneficia por dos motivos: las ganancias de calor se detienen en el exterior del edificio, y los dispositivos mismos se encuentran protegidos de la intemperie lo cual es un beneficio importante desde el punto de vista de la limpieza y mantenimiento.
Invierno
Se aprovecha la energía de dos maneras: disminuyendo las pérdidas de energía del edificio gracias al excelente Valor U que se obtiene y mediante una gestión adecuada las fachadas que reciben energía solar, pueden capturarla gracias al efecto invernáculo e introducirla dentro del edificio aportando calor.
Cliente: Fundación del Pino
Arquitectos: Rafael de La-Hoz
Fecha: 2000
Aeroparque Jorge Newbery Buenos Aires / Argentina
Los muros cortina de la nueva terminal de este aeropuerto además de requerir características técnicas complejas (poca reflectividad, buena aislación acústica, seguridad y muy precisas intenciones formales, debían poder construirse en un tiempo muy corto, y al menor costo posible. Es así que Estudio Marshall & Asociados diseñó una solución basada en un sistema resuelto con perfiles de aluminio de sistemas estandarizados de proveedores locales, pero con detalles no convencionales.
Se logró una envolvente con la resolución formal exactamente como lo pedían los croquis originales de los arquitectos con valores de aislación acústica cercanos a Rw=46 y aislación térmica K=2.0 superiores a los esperados y con un sistema constructivo sumamente simple que permitió al constructor abastecerse rápidamente de los insumos necesarios y cumplir cómodamente con los plazos
Cliente: Aeropuertos Argentina 2000
Arquitectos: Bodas - Miani - Anger Arqs. / Lopez - Rivarola - Cosenza Arqs.
Fecha: 2000
Canary Wharf Edificios DS4 / DS1 / HQ2 Londres / UK
"Las fachadas de los edificios le dan forma a la calidad de la vida que disfrutamos" con esta frase Hyder Consulting resume su concepción sobre las fachadas. Hyder Consulting consultora inglesa con más de 150 años de historia y más de 2250 profesionales en todo el mundo, contrató los servicios de Estudio Marshall & Asociados para sus tres edificios de más de 50.000 sqm cada uno, en el corazón de Londres, Canary Wharf, se nos encomendó la tarea de control de calidad en obra.
Se realizaron controles rutinarios de montaje de paneles, decorativos, cubiertas vidriadas y demás ornamentos. Realizamos ensayos de campo, de infiltración de agua y de aire, y la coordinación con la dirección de obra.
Cliente: Hyder Consulting
Arquitectos: Skidmore Owings & Merrill / Cesar Pelli & Associates
Fecha: 2002
Torres Fira Barcelona / Spain
El proyecto original del Arquitecto japonés Toyo Ito perfeccionado luego por el b720 arquitectura de España propone un desafío importante al tratar a las dos torres como complementarias entre si (una el ying y otra el yang, una el positivo la otra el negativo, una lo cerrado la otra lo abierto). Esta fuerte idea bipolar se refleja en la fachada. El hotel tiene una fachada de compleja geometría con una superficie reglada que cambia en cada planta dando una envolvente cambiante sin coincidir con la plomada ni tener ángulos rectos en ningún momento. Nuestra solución fue proponer una doble piel donde la interior maciza, resistente, aislante, estuviese vertical, y la exterior: abierta, liviana, recompone exactamente la geometría propuesta por los arquitectos, casi como un “Bosque de Bamboo” construida con tubos redondos de aluminio separados entre si que “refrescan” la fachada interior.
Cliente: Consorcio Torres Fira
Arquitectos: Toyo Ito & Associates Architects + b720 Arquitectos
Fecha: 2004


Colonos Plaza Dique IV / Puerto Madero / Buenos Aires / Argentina
Estudio Marshall y Asociados trabajó en esta obra desde el origen del diseño de los muros cortina, parasoles, y storefront integrándose al equipo de diseño de los arquitectos, preparando los planos de detalle y pliegos de especificaciones para el llamado a licitación. Una vez adjudicada la obra contratados por el propietario participamos durante todo el proceso de obra brindando servicios de consultoría al propietario y la dirección de obra en las distintas etapas, revisión de planos de taller y cálculo estructural de los diferentes cerramientos, inspecciones de calidad en fábrica, ensayos de laboratorio de un prototipo de fachada. Control de calidad de la instalación en obra, ensayos de infiltración de agua en obra para verificar la calidad.
Cliente: Sociedad de Inversiones Inmobiliarias del Puerto
Arquitectos: M/SG/S/S/S - Hugo Salama Arquitecto Asociado
Fecha: 1999-2001
Centro Comunitario Punta del Este Punta del Este / Uruguay
“El cristal, transparente y opaco, presente y ausente al mismo tiempo construye un paisaje onírico, una especie de collage de interioridad y exterioridad, de adelante y atrás, de superficie y profundidad, introduce misterio, ambigüedad y fragmentación.”
Templo destinado a los servicios religiosos de la Comunidad Sefaradí Yesod Hadath, especialmente durante los meses estivales. Esta Sinagoga esta ubicada en el corazón del lujoso balneario de Punta del Este, a escasos metros del mar. Este magnífico proyecto del Arq. Salama contemplaba una gran cubierta de 400 m2 de cristal sobre el salón principal del Templo, lo que constituía un verdadero desafió para Estudio Marshall, por la cercanía con el océano y la rigurosidad del clima durante los meses de mayor actividad (alta diafanidad, muchas horas de radiación solar, vientos importantes y entorno de playas de arenas finas).
Nuestra primera decisión fue hacer un riguroso estudio del recorrido del sol y de la radiación solar incidente, para analizar su impacto en el sobrecalentamiento del ambiente y en el exceso de iluminación . Esto nos ayudó a definir que era necesario proveer cristales con un Factor solar que debía estar por debajo de 0,22 pero sin perder la transparencia que solicitaba el Arquitecto. Al mismo tiempo y debido a la escasa pendiente que presenta la geometría de la cubierta proyectamos un sistema de extrusiones de aluminio y estructura especial para soportar los paneles de cristal de 1.8m x 1.8m. Desde el punto de vista tecnológico, concebimos todos y cada uno de los componentes de la envolvente de este edificio como los de un barco, definiendo en primer lugar sus características de durabilidad y fácil y bajo mantenimiento en un medio ambiente agresivo como es la costa marítima.
Cliente: Congregación Sefaradí - Yesod Hadath
Arquitectos: Hugo Salama
Fecha: 2001-2005
Ciudad Judicial Santiago Santiago / Chile
La dimensión del proyecto, en su momento, el más grande de Latinoamérica, más de 120.000 m2. La justicia es probablemente uno de los actos de la civilización y del hombre más sublime. Es la instancia en donde el hombre juzga los actos de sus congéneres para ordenar la convivencia de todos. El proyecto responde a los requerimientos climáticos de la región resolviendo con su estructura arquitectónica un espacio exterior contenido que favorece la regulación climática del conjunto, abierto al Norte y con un espejo de agua de gran tamaño recostado sobre la cara Poniente, que favorece la humidificación de la plaza, haciendo uso de los medios pasivos que favorezcan un óptimo aprovechamiento energético de asoleamiento, iluminación y ventilación natural, y resuelvan con un mínimo de recursos las mejores condiciones de confort. Estudio Marshall y Asoc. colaboró con los estudios Vila-Sebastián-Vila Arquitectos de Argentina y Cristián Boza & Asociados Arquitectos de Chile en el proyecto de las envolventes. Más de 90.000 m2 de fachadas y más de 2000 m2 de lucernarios. Uno de los desafíos encarados en conjunto con los diseñadores fue el de resolver los distintos tipos de fachadas utilizando y apelando a soluciones sustentables de control climático pasivo. Así según sea la orientación y el destino de los locales a servir se resolvieron fachadas de doble piel de vidrio, con sistemas de ventilación asistida, sistemas de doble piel con incorporación de parasoles fijos de aluminio, y fachadas de simple piel, inclinadas inmersas en una malla tipo “huevera" de Hormigón Armado El desafío encarado por Estudio Marshall & Asociados en la obra más importante de Latino América y a su vez paradigmática de la Justicia del continente, ubica una vez más a Estudio Marshall & Asociados en la vanguardia global con respecto a las Envolventes en Arquitectura.
Cliente: Centro de Justicia Santiago
Arquitectos: Estudio Vila Sebastián Vila Arquitectos (Argentina) Estudio Cristián Boza (Chile)
Fecha: 2003-2004


Edificio ´Oscar Magurno´ Asociación Española Primera de Socorros Mutuos Montevideo / Uruguay
Constituye para nosotros una obra especial pues la AEPSM fue nuestra primer obra de control de calidad internacional (Montevideo - Uruguay). Estudio Marshall & Asociados acompañó a la Dirección de obra desde la supervisión de la ingeniería de proyecto, revisión de detalles constructivos, seguimiento para el cumplimiento del pliego de licitación, controlando la calidad de fabricación y puesta en obra del muro cortina, realizando ensayos de campo, hasta la recepción final. Para ello nos integramos al equipo de trabajo del Estudio Guerra & Asoc., constituyendo esto una experiencia importante pues tuvimos que implementar diferentes metodologías para mantener el flujo de comunicación e información al día en la distancia.
Este edificio se destaca en Sudamérica no solo por su envergadura, sino por la exigencia de muy altos standares hospitalarios (aislación acústica, insonorización, aislación cortafuegos, higiene sanitaria).
Cliente: Asociación Española Primera de Socorros Mutuos
Arquitectos: Estudio Guerra & Asoc. (Uruguay)
Fecha: 2000-2002

Aeropuerto Internacional de Ezeiza Buenos Aires / Argentina
La ampliación del Aeropuerto internacional de Ezeiza requirió de una propuesta de cerramientos vidriados que debía dar respuesta simultanea a las siguientes cuestiones: rapidez de fabricación y montaje, muy buena aislación acústica y térmica, resolución estética.
Estudio Marshall y Asociados fue contratado por los estudios de Arquitectura para desarrollar los diseños y redactar las especificaciones de las paredes vidriadas definiendo los criterios de performance que debían cumplir.
Cliente: Aeropuertos Argentina 2000
Arquitectos: MSGSSS - Urgell / Penedo / Urgell
Fecha: 2000
Ciudad Judicial de Barcelona y L´Hospital de Llobregat Barcelona / Spain
Este proyecto de los arquitectos David Chipperfield de Londres y b 720 Arquitectura de Barcelona, consiste en un conjunto de 16 edificios destinados a albergar las diferentes dependencias de los tribunales civiles, comerciales, penales, etc. así como Defensoría y Fiscalía de las ciudades de Barcelona y de L´Hospitalet de Llobregat vinculados a nivel de las primeras cuatro plantas por medio de un gran atrio. Los arquitectos proyectaron las fachadas principales de los edificios con un único sistema de fachadas. Además había un sistema de fachadas especial para el atrio, un sistema de cubierta acristalada para el lucernario del mismo. Hasta ahora, nuestra intervención en el mismo ha sido elaborar el proyecto básico de
todos estos elementos. Elaboramos todos los planos y especificaciones necesarias de acuerdo a la normativa vigente en Barcelona. En el caso de las fachadas de los edificios, el modulo que se repite en todas ellas es de 600 mm x 2840mm alternando zonas opacas (de hormigón a la vista de fuerte espesor (350mm)) y zonas acristaladas (de una ventana interior operable y una pantalla de cristal exterior formando un doble aventanamiento al estilo "box window" con cámara intermedia ventilada naturalmente). Una característica muy relevante de estas fachadas es que tienen 16.000 ventanas iguales. En un proyecto de tanta extensión y tanta repetición indudablemente la estandarización de los elementos así como la simpleza constructiva es altamente apreciada. Nuestra propuesta consistió en trabajar las fachadas como un sistema de muro cortina del tipo "prefabricado" o "unitized" pero montado por el interior de las áreas opacas. A su vez construimos cada panel agrupando 3 módulos opacos y 3 módulos acristalados. Estos paneles de 3600 mm x 3840mm son prefabricados en taller, llegan a la obra con todos sus elementos (estructura, cristales, aislaciones térmicas, protecciones al fuego, etc) ya colocados, y se montan desde el interior restando solamente instalar los tableros del aplacado interior de yeso de las zonas opacas y la pantalla exterior de cristal de las zonas acristaladas. De esta manera evitamos el tener que replantear, transportar, e instalar 16.000 módulos y logramos las ventajas del sistema de prefabricación (mejor calidad de la fachada, bajos costos y simplicidad de montaje) al mismo tiempo que reducimos los tiempos de montaje a la tercera parte. Con los mismos criterios, para el caso de la cubierta acristalada también propusimos un sistema de módulos prefabricados, los que en este caso se instalarán sobre la estructura primaria de la cubierta, y para el caso de las fachadas del atrio, propusimos un sistema de módulos prefabricados con zonas acristaladas y zonas de louvers de ventilación, reduciendo costos y perfeccionando la calidad de la cubierta y las fachadas.
Cliente: Generalitat de Catalunya
Arquitectos: David Chipperfield - b720 Arquitectura
Fecha: 2003


Master Office Vicente Lopez - Argentina
El proyecto proponía diferentes tipos de muro cortina en el mismo edificio, según sus orientaciones y espacios funcionales. Eran especiales premisas en este proyecto, el eficaz comportamiento térmico de estos cerramientos a lo largo de la vida útil del edificio y por otro lado la dinámica inmobiliaria exigía una inusual rapidez de montaje.
Estudio Marshall & Asociados logró para las fachadas laterales mas extendidas una solución con antepechos ciegos que permiten tener importantes sectores opacos, excelentemente aislados térmicamente y por encima largas tiras de vidrios visión que fueron provistos de cristales dobles de alta performance térmica y lumínica. En las fachadas de frente a las calles Libertador y Bartolomé Cruz el planteo fue diferente. Preferimos usar frentes totalmente transparentes pero también con cristales dobles de alta performance en este caso compuestos por vidrios laminados de seguridad. Lo interesante de todo es que se logró resolver la totalidad de los sistemas de muro cortina con un sistema constructivo tipo "Frame" que permitió construir las fachadas en módulos de aluminio, en el taller, mientras que en la obra se completaba la estructura de hormigón, otorgándole a la obra la dinámica requerida.
Cliente: Kasike - Toro
Arquitectos: Santiago Alvarez Noblia & Asoc.
Fecha: 2000
Ecohouse Bariloche - Argentina
La Ecohouse de Bariloche es la primer casa con envolvente fotovoltaica (Cubierta solar) de Argentina. La energía solar fotovoltaica (FV), que consiste en la trasformación directa de energía solar en electricidad por el simple hecho de exponer un elemento fotovoltaico al Sol, es una de las energías renovables mas respetuosas con el medio ambiente ya que produce la electricidad sin ningún movimiento, ruido, humo, etc. La integración de estos sistemas FV (foto-voltaicos) en la envolvente de los edificios , es un desafío no fácil de resolver, pero que tiende a obtener un logro superior como es "Utilizar la arquitectura para producir energía".
Estudio Marshall & Asociados desde hace tiempo viene trabajando en la integración de sistemas de aprovechamiento de energía solar en fachadas y cubiertas en colaboración con empresas europeas. En este proyecto Estudio Marshall & Asociados, diseñó el sistema de carpintería y estructuras para integrar los paneles fotovoltaicos que producen alrededor 1/3 de la demanda anual de electricidad estimada para la casa. El sistema proyectado ocupó perfileria de aluminio standard especialmente adaptada, con un sistema de instalación especial para alojar los cables del sistema y ventilar "la espalda" del sistema manteniendo las condiciones de bajo mantenimiento, hermeticidad y resistencia estructural que debe tener una cubierta en zonas con nevadas importantes.
Cliente: Manuel Fuentes y Ana Lopez
Arquitectos: Centro de Hábitat y Energía UBA (Universidad de Buenos Aires)
Fecha: 2000

Torres El Faro Puerto Madero / Buenos Aires / Argentina
Esta elegante torre de espaciosos apartamentos luce su esbelta figura sobre la misma costa del Río de la Plata en la Ciudad de Buenos Aires. Esta privilegiada ubicación al mismo tiempo de ofrecer panorámicas vistas desde cada ambiente, está expuesta a las fuertes tempestades típicas del lugar (Sudestadas) que se caracterizan por copiosas lluvias con persistentes vientos durante varias horas e incluso días. Esto representa un cuadro altamente exigente para la hermeticidad de las aberturas. A estas condiciones ambientales se agregó el hecho de que las aberturas elegidas fueron las ventanas de aluminio de doble movimiento (Oscilo-batientes) con apertura hacia el interior, lo que expone aun más a cada abertura a una situación exigente (En el caso de tormentas la abertura naturalmente tenderá a abrirse).
Estudio Marshall & Asociados S.A. a partir de un lineamiento general debió desarrollar el completo diseño de los perfiles extruidos de aluminio y burletes con cuidadosos detalles y especificaciones de matricería, mecanizado, armado e instalación. Supervisando la fabricación de los primeros prototipos y conduciendo las correspondientes pruebas de laboratorio hasta su completa aprobación bajo normas AAMA y ASTM.
El resultado fue una lograda línea de aberturas de alta performance, elegante diseño y bajo mantenimiento.
Cliente: Sr. Perelmuter
Arquitectos: Dujovne - Hirsch
Fecha: 2000-2001
Torre La Caja (ex Repsol) Madrid / España
Proximamente ampliaremos la información.
Servicios profesionales: Supervision de proyecto, fabricacion y montaje.
Cliente: Gerens
Arquitectos: Foster & Partners
Fecha: 2006-2008

Campus de Oficinas Repsol Madrid / España
Proximamente ampliaremos la información.
Servicios profesionales: Diseño de Fachadas
Cliente: Rafael De La Hoz
Arquitectos: Rafael de La Hoz
Fecha: 2008-2009

Torres Oncisa Madrid / España
Proximamente ampliaremos la información.
Servicios profesionales: Diseño de Fachadas
Cliente: Oncisa
Arquitectos: Rafael de La Hoz
Fecha: 2008

Smart-City Bucarest / Rumania
Proximamente ampliaremos la información.
Servicios profesionales: Diseño de Fachadas
Cliente: Rafael de La Hoz
Arquitectos: Rafael de La Hoz
Fecha: 2009
BBVA Madrid / España
Proximamente ampliaremos la información.
Servicios profesionales: Diseño de Fachadas
Cliente: Gerens
Arquitectos: Herzog & The Meuron
Fecha: 2009-2010
.
Intro - Servicios y Actividades - Proyectos - Obras y Antecedentes - Termografía Infrarroja